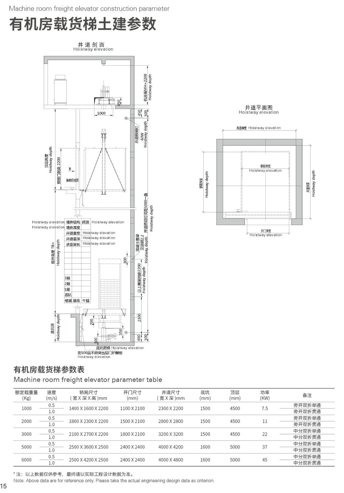
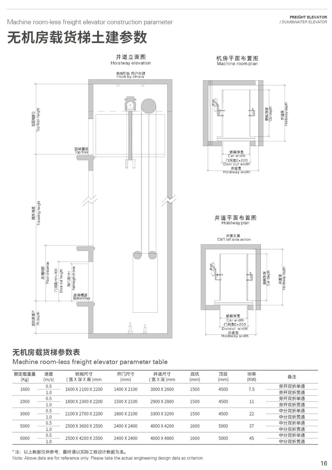
绿巨人黄片下载係列載貨電梯優化設計的轎廂寬敞明亮,經濟實用,使貨物運輸方便快捷,運行平穩,載重量大等優良品性,在工廠、倉庫、商場、購物中心、圖書館等不同用途和環境均能滿足客戶的需要,是更好的貨運工具。
版權所有©绿巨人黄片下载電梯有限公司 備案號:贛ICP備13554332號-1 贛公網安備 36012202000318號
地址:江西省南昌市新建區望城新區興業一路366號 網址:www.winsorpharm.com 服務熱線:400-098-1966 技術支持:
* 信息保護中,請放心填寫